Seamless Box Gutter
Residential and Commercial Seamless Box Gutter
Our seamless Euro Box Gutters are manufactured using the highest quality materials and advanced machinery to ensure durability and longevity. They are available in a range of colors and finishes, allowing you to choose a design that complements your home or commercial property. We take pride in offering a seamless installation process, ensuring no leaks and a perfect fit every time. Our team of experienced professionals will work closely with you to understand your specific needs, ensuring that the Euro Box Gutters we install are tailored to meet your unique requirements. Our Euro Box Gutters are also supported by a range of accessories including downspouts, hangers, and elbows. These accessories provide additional functionality and help to prevent water damage to your property.
Gutter Services
At our gutter company, we also offer comprehensive maintenance services to ensure that your Euro Box Gutters continue to perform at their best. We provide regular cleaning and inspection services to keep your gutters free from debris and in good condition. If you're looking for a reliable and experienced gutter company to install Euro Box Gutters or Seamless Box Rain Gutters, look no further than us. Contact us today to discuss your needs or to request a free quote.
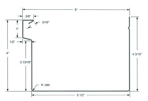
BOX GUTTERS
Our Box Gutters can be customized to fit your unique needs and preferences. We offer a wide range of colors and finishes to match your building's exterior, and we can also fabricate custom lengths to fit any size building.
If you're looking for a modern and unique gutter profile that adds a touch of style and sophistication to your home or building, consider our 5 inch and 6 inch Roll Form Seamless Box Gutters. Contact us today to discuss your gutter needs and get a quote for your project.
How to determine which Seamless Gutter and Downspouts...
5 inch seamless Box gutters are common on most residential homes or small businesses. This size will handle water draining off of smaller roofs. 5 inch are commonly equipped with 2x3 inch down spouts; however larger 3x4 inch down spouts can be put in areas that require more water drainage.
6 inch seamless Box gutters are commonly used on larger roofs and commercial buildings. Larger roofs that drain mass amounts of water need a larger system that can catch and drain the rain water faster. 6 inch are equipped with 3x4 inch down spouts, which makes it a great system for larger roofs.
Call (720) 282-4701 Today for your free estimate! We look forward to helping you with your project as your premium gutter company.












































































































